Appartamento con 2 Camere e Giardino Privato
Proponiamo in vendita un comodo appartamento situato al piano terra di una palazzina edificata nel 2010, caratterizzata da ottime finiture costruttive e dotata di ascensore.
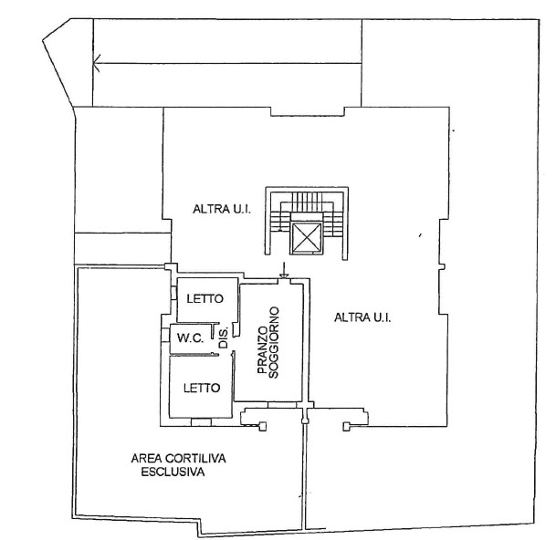
L’ingresso si apre sul soggiorno con cucina a vista, ambiente moderno e funzionale, che gode di accesso diretto al giardino di proprietà. Questo spazio esterno, perfettamente curato e attrezzato con impianto di irrigazione automatico, rappresenta un piacevole angolo di relax e convivialità.
La zona notte è composta da una camera matrimoniale, una camera singola e un bagno finestrato, garantendo comfort e praticità sia per famiglie che per chi desidera una seconda stanza da adibire a studio.
Al piano interrato l’immobile dispone di una comoda cantina e di un’autorimessa privata, facilmente raggiungibili anche tramite ascensore.
Immobile ad Alto Risparmio Energetico con riscaldamento a pavimento, ricircolo controllato dell'aria, pannelli solari con accumulo acqua calda, muro di 60 cm. con doppio isolante, zanzariere e aria condizionata.
Un appartamento che unisce comfort moderni, spazi funzionali e un prezioso giardino privato: la scelta ideale per chi cerca un’abitazione accogliente e pronta da vivere.
Un nostro incaricato sarà lieto di rispondere alle vostre domande.
La nostra agenzia, grazie ad un consulente del credito è in grado di offrire alla propria clientela una consulenza personalizzata sui seguenti prodotti:
- mutui prima o seconda casa e ristrutturazione
- sostituzione del vostro attuale mutuo con uno a condizioni più vantaggiose
- cessioni del quinto dello stipendio/pensione per ottenere liquidità immediata
- consolidamento debiti
- polizze assicurative a tutela della famiglia, vita e danni.
Precisiamo che l'indirizzo pubblicato potrebbe non corrispondere all'esatta localizzazione dell'immobile al fine di tutelare la privacy del venditore.
Le immagini e le descrizioni di tutti i nostri annunci, relativi agli immobili pubblicati in vendita ed in locazione, non costituiscono inoltre elemento di pretesa contrattuale pertanto, nei più ampi termini di legge, Progetto Casa srl declina ogni responsabilità.
CARATTERISTICHE
- Piano Terra
- 80 mq. Commerciali
- 3 locali
- 1 Bagni
- 2 Camere da Letto
- Giardino Privato
- Autorimessa e Cantina
- Pannelli Solari
- Ricircolo controllato dell'aria
- Riscaldamento Autonomo


































