Casa Indipendente con Due Appartamenti e Ampi Spazi a Campegine
A Campegine, in una zona con forte presenza di attività produttive, proponiamo una villa singola che si distingue per la sua ampiezza e per le molte possibilità d’uso. La posizione, inserita nel contesto della zona industriale, rende questa soluzione particolarmente indicata per chi cerca vicinanza a servizi, attività lavorative o desidera gestire comodamente sia la vita familiare sia eventuali esigenze professionali o di stoccaggio.
La proprietà è composta da due appartamenti completamente indipendenti, caratteristica ideale per famiglie che desiderano mantenere la propria autonomia pur restando vicine, o per chi necessita di un’abitazione da affiancare a spazi destinati al lavoro.
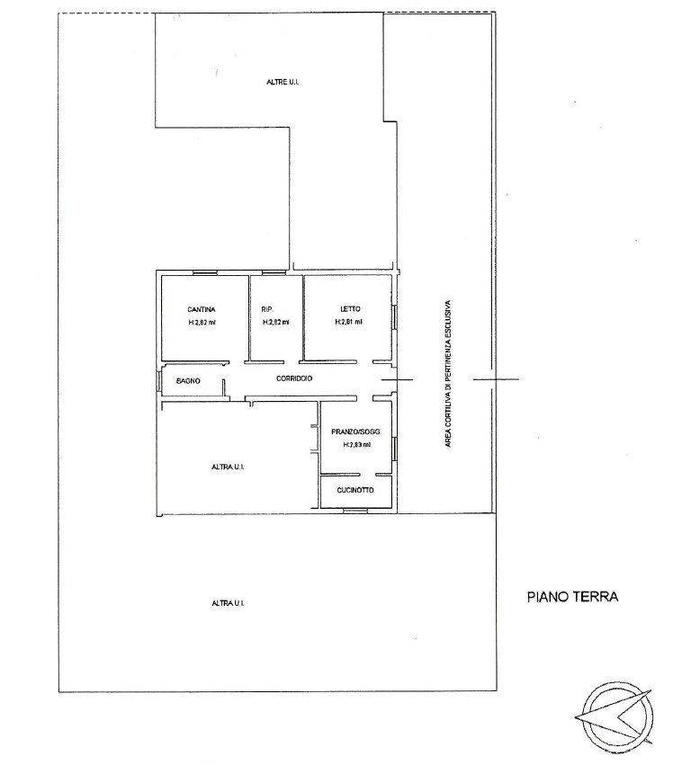
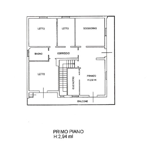
L’appartamento al piano terra, di circa 113 mq, gode di accesso diretto al giardino privato, offrendo ambienti confortevoli e facilmente fruibili. Al primo piano si sviluppa invece un appartamento di circa 200 mq, con tre camere da letto e un accogliente caminetto che impreziosisce la zona giorno.
Il giardino privato rappresenta uno spazio prezioso dove ritagliarsi momenti all’aria aperta, mentre la presenza di un capannone di circa 60 mq offre un’ulteriore opportunità per chi necessita di aree di deposito, laboratorio o hobby. Completano la proprietà quattro autorimesse per un totale di circa 70 mq, oltre a un ampio cortile privato che permette di parcheggiare comodamente più veicoli.
La soluzione è particolarmente adatta ad artigiani, liberi professionisti, piccoli imprenditori o a chi possiede mezzi di lavoro e ha bisogno di spazi comodi, facilmente accessibili e vicini alla propria abitazione.
Una proposta pratica e funzionale, pensata per chi cerca grandi metrature e versatilità.
Per ulteriori informazioni o per organizzare una visita, siamo a disposizione.
La nostra agenzia, grazie ad un consulente del credito è in grado di offrire alla propria clientela una consulenza personalizzata sui seguenti prodotti:
- mutui prima o seconda casa e ristrutturazione
- sostituzione del vostro attuale mutuo con uno a condizioni più vantaggiose
- cessioni del quinto dello stipendio/pensione per ottenere liquidità immediata
- consolidamento debiti
- polizze assicurative a tutela della famiglia, vita e danni.
Precisiamo che l'indirizzo pubblicato potrebbe non corrispondere all'esatta localizzazione dell'immobile al fine di tutelare la privacy del venditore.
Le immagini e le descrizioni di tutti i nostri annunci, relativi agli immobili pubblicati in vendita ed in locazione, non costituiscono inoltre elemento di pretesa contrattuale pertanto, nei più ampi termini di legge, Progetto Casa srl declina ogni responsabilità.
CARATTERISTICHE
- 300 mq.
- 2 Appartamenti
- 4 Autorimesse
- Capannone di circa 60 mq.
- Giardino privato
- Riscaldamento Autonomo
- Classe Energetica: "G"


































